云开网页版登录入口

欢迎您来到云开网页版登录入口-云开中国招标集团
||010-63392899 / 010-63509799
其他云开网页版登录入口-云开中国

烧结工序全流程除尘器系统超低排放改造之2#360㎡烧结工序机尾和成品除尘器系统超低排放改造项目总承包工程澄清云开网页版登录入口-云开中国 (二)

一、项目名称:烧结工序全流程除尘器系统超低排放改造之2#360㎡烧结工序机尾和成品除尘器系统超低排放改造项目总承包工程

二、项目编号:LZDC2021-G2-00045-HCZB

三、招标云开网页版登录入口-云开中国 发布时间:2021年9月9日

四、澄清事项:

(一)工艺专业:

1、请澄清:烟囱的防腐是否是只按标书中要求的油漆进行涂漆防腐?

2、请提供:改造风机的原始安装图及设备资料。

3、请提供:烟囱图纸。

4、请提供:风机进出口烟道图纸。

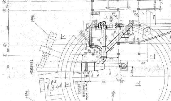
5、请提供:从机尾和成品电除尘器喇叭口入口至烟囱出口范围内所有改造内容烟道图纸(包括净烟道图纸)。

6、请提供:厂区压缩空气布置图。

7、请提供:系统总平面图纸及建设范围红线图。

答:以上问题第17点的相关资料将通过邮件形式发送到各投标人邮箱,请注意查收

8、标书中要求机尾除尘器入口风管支管改造,请提供此部分相关图纸。

image.pngimage.png

9、标书中:采样点设在出口烟囱中段取样平台(机尾已布置有CEMS,成品电除尘器要求按照国家环保相关监测标准设置CEMS和采样平台)。与投标方负责在成品和机尾电除尘器烟囱出口各配备一套烟尘在线监测系统,共2套,放置在现有成品电除尘器配电室和机尾电除尘器的环保监测房,原有CEMS不利旧。前后矛盾,请澄清CEMS的套数?

答:新增两套符合超低排放监测要求的CEMS

(二)非标专业:

1、请提供:原机尾电除尘器及成品电除尘器本体结构全套图纸。

答:相关资料将通过邮件形式发送到各投标人邮箱,请注意查收。

(三)土建专业:

1、请澄清:土建电除尘支架部分的钢梯平台栏杆是否需要拆除更换。

答:P1424.7平台和顶棚机尾和成品电除尘器本体所有平台和上下楼梯全部不利旧。

2、请澄清:土建若有新增支架、建筑物等,结构形式、材质是否有要求。

答:新增类要符合相关规范要求P119

3、请提供以下图纸:1)电除尘支架基础图、上部结构图;(2)地面设备基础图;(3)电气楼的基础图、建筑图、结构图;(4)原有烟囱图纸(含基础);(5)电除尘进、出口烟道支架基础图、上部结构图;(6)风机房(若有)建筑图、结构图、基础图、风机基础图;(7)本区域桩基图(若有);(8)地勘报告;(9)总平面图、地下管线图。

答:相关资料将通过邮件形式发送到各投标人邮箱,请注意查收。

(四)电气专业:

1、请提供:现有电除尘器供配电系统图、二次图、负荷统计表、防雷接地布置图、照明图、电缆敷设图、电缆清册、电气设备布置图;

2、请提供:现有电控楼各层设备布置图;

3、请提供:除尘区域电缆主通道图;除尘区域防雷接地主网布置图;

答:以上问题第13点的相关资料将通过邮件形式发送到各投标人邮箱,请注意查收

4、问:标书中“原低压系统没有无功补偿,本次改造后,需要将高低压侧功率因素提高到0.9。”请说明现高压侧功率因数情况。请提供10kV高压开关柜设备布置图、高压系统负荷计算表、高压柜系统图,高压设备电缆清册;

答:不考虑

5、 问:标书中要求PLC接地单独设置。请说明设置要求,比如接地电阻、材料选择等。

答:用铜板作接地极,用50~70mm2多股铜线焊接引至PLC柜专用接地端子。接地电阻﹤1Ω。

(五)仪控专业:

1、请澄清:保留的电除尘器一电场控制系统,是否利旧原PLC控制系统,原PLC使用的是什么品牌和系列型号?

答:一电场可以利旧原PLC控制系统,优先在新系统控制,具体在设计时定。原PLC为西门子S7-200系列。

2、请澄清:新建布袋除尘器PLC系统控制柜布置在原除尘设施电气控制室,新增的2套上位机电脑布置在哪里?

答:主抽操作室。

3、请澄清:新建布袋除尘器PLC系统的交接点是除尘主控室还是主抽操作室?

答:主抽操作室。

4、请澄清:如果电气楼配电室利旧,配电室是否需要增加视频监控系统?如需要增加,是否仅配置摄像机、前端传输设备等,视频信号接入烧结原有配电室监控系统存储和显示?烧结原有配电室监控系统使用的是什么品牌和系列型号?

答:如果电气楼配电室利旧,配电室不需要增加视频监控系统。

5、请澄清:如果电气楼配电室利旧,配电室是否需要新增火灾报警系统?请提供原有旧系统的火灾报警系统图纸。

答:如果电气楼配电室利旧,配电室不需要新增火灾报警系统。

6、请提供:原电除尘器系统的电气控制图纸,电缆桥架布置图、电气控制室布置图、电缆清册、电气控制设备清册。

答:相关资料将通过邮件形式发送到各投标人邮箱,请注意查收。

7、请提供:拟建布袋除尘器区域至除尘主控室或主抽操作室,至烧结原有配电室,至旧的火灾报警系统控制器的的电缆通道布置图,或者提供以上区域的电缆敷设长度。

答:没有新建配电室的话不用考虑。

 

(六)其他:

1、提供机尾、成品除尘器从入口烟道至烟囱设备立面图,平面图(含入口烟道及烟囱)。

2、提供机尾、成品除尘器招标文件所写红线区域图纸。

答:图纸与区域已经踏勘时说明。

3P103机尾、成品除尘器“主要设计参数要求”中过滤风速、滤袋材质、规格是否限定?

答:机尾过滤风速0.85m/min,成品P1200.8m/minP102已经对滤袋材质、规格做了要求。

4P118“原有机尾和成品电除尘器锤头、极线等磨损较严重的部位,需对这些零部件进行更换和维修。 ”请明确锤头更换的量,机尾除尘器极线是否也全部更换?

答:锤头更换数量无法确定,要以当时停机检查为准,机尾一电场不需要全换极线,P100建设范围有描述。

5、P118“要求对一电场出口设置导流板,降低气流对前排布袋的冲刷”,我公司常规电袋在一电场出口不设置导流板,能否偏离?若不能偏离,请提供导流板形式以供我方测算参考。

答:能否偏离由评审专家判定,导流板由贵公司设计。

6、P135,油漆防腐主要钢部件及设备主体外表面、非封闭结构内表面分别指的是供货范围哪些部分?

答:与空气有接触的所有表面。

7、招标文件烟气量与实际设计烟气量不一致,是否按原有项目设计烟气量?

答:按项目设计烟气量。

8、供货范围是否为“机尾和成品电除尘器喇叭口入口(含补偿器)至烟囱出口”?烟囱和除尘器出口烟道的改造范围是?

答:踏勘已经澄清。(红线范围)

image.png

5、灰斗和仓泵的改造是否仅表面涂漆防腐?

答:P1224.3输灰系统)已明确改造内容,包含输灰系统管道弯头维修或更换。

6、更换风机的目的及提供原风机及基础图纸。

答:答:相关资料将通过邮件形式发送到各投标人邮箱,请注意查收。

7、膨胀节更换是否为除尘器进出口的膨胀节都需更换?

答:是

8、提供矿石原料及成分占比、燃料成分及占比、粉尘比电阻、粉尘堆比重、硅钙比。

image.png

五、联系方式:

人:柳州钢铁股份有限公司                        招标代理机构:云开网页版登录入口-云开中国

地    址:广西柳州市北雀路117号              地    址:南宁市良庆区平乐大道21号广西路桥集团总部大厦主楼十七  层1708号办公室

人:李工                      人: 李奕海

   话:0772-2595957              话: 0771-4308717

                              电子邮件: WY88948@163.com

                                      2021918